◎ 廣東省知名商標 ◎ 國家建筑裝飾工程設計專項甲級 ◎ 建筑裝修裝飾工程專業(yè)承包壹級
歡迎訪問星藝裝飾南寧公司官網








金源一品97平裝修案例
榮和大地179平裝修案例
教育路3號單位房125平裝修案例
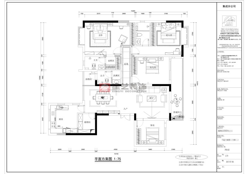
龍光玖瓏湖200平裝修案例
鳴翠谷300平裝修案例
招商境界215平裝修案例
合景天峻300平裝修案例
廣源大都會190平裝修案例
提交信息,試看
| 請輸入您的稱呼 |
| 請輸入您的手機號碼 |
| 請輸入您的樓盤名稱 |
為您提供小區(qū)戶型裝修效果圖參考!
人氣:11374